35′ x 45′ 3BHK
₹999 Original price was: ₹999.₹499Current price is: ₹499.
Specification:
| Plot Size: | 35’x45′ | Plot Area: | 3150sqft |
| Bed Rooms: | 3 | Bathrooms: | 3+1 |
| Kitchen: | 1 | Directions: | South |
Fast Shipping
Worldwide Shipping.
24/7 Support
24/7 Customer Support
Safe & Secure
100% Safe & Secure
Easy Payment
Multipal Payment Options
Description
3150sq ft – 3BHK
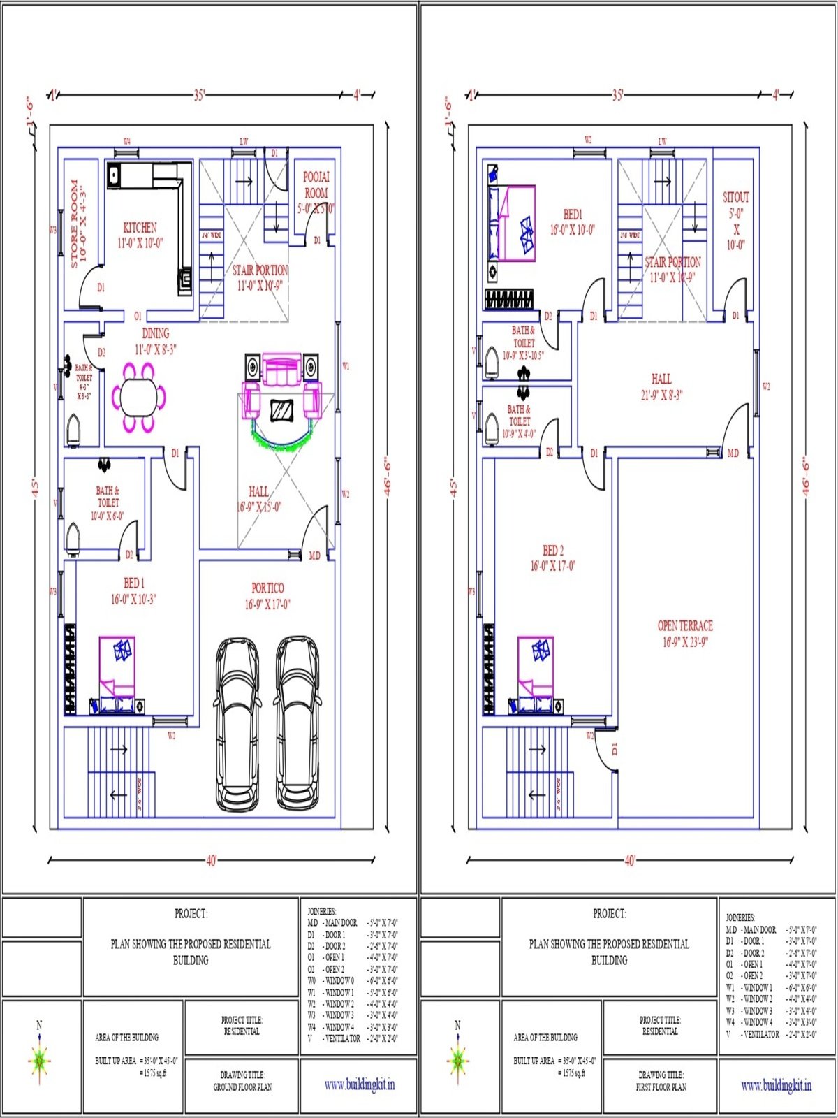
Ground floor:
Hall – 16’9″ x 15’0″
Kitchen – 11’0″ x 10’0″
Attached store room in kitchen – 10’0″ x 4’3″
Dining – 11’0′ x 8’3″
Master bedroom – 16’0″ x 10’3″
Attached toilet in Master bedroom – 10’0″ x 6’0″
Pooja – 5’0″ x 5’0″
Common toilet – 4’3″ x 8’3″
Inside staircase area – 11’0″ x 10’9″
Portico – 16’9″ x 17’0″
Outside staircase area – 16’9″ x 6’9″
Duplex house with spacious living area.
spacious rooms with full ventilation.
First floor:
Hall – 21’9″ x 8’3″
Bedroom 1 – 16’0″ x 10’0″
Bedroom 2 – 16’0″ x 17’0″
Attached toilet in Bedroom 1 – 10’9″ x 3’10.5″
Attached toilet in Bedroom 2 – 10’9″ x 4’0″
Sit out – 5’0″ x 10’0″
Inside staircase area – 10’9″ x 10’9″
Outside staircase area – 16’9″ x 6’9″
Open terrace – 16’9″ x 233’9″
2 Bedroom with attached toilet.



Reviews
There are no reviews yet.